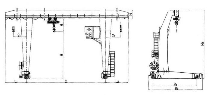
L型电动葫芦门式蜜桃视频APP下载机与CD1单速电动葫芦或MD1型单速电葫芦配套设施应用,是一种有轨运作的小型吊车,适用吊重5-10吨,跨距16-30米。办公环境-20-+40℃。
L型电动葫芦门式蜜桃视频APP下载机为一般主要用途蜜桃视频APP下载设备,适用室外工作的固定不动跨间,装卸搬运或爬取原材料。有路面实际操作和房间内实际操作二种方法。远程服务器严禁吊装易燃易爆物品。



相关推荐
联系人:徐经理
手机:13782575673
电话:0373-8611375
邮箱:hnzyaqqz@126.com
官网:www.766cs.com
地址:河南长垣蜜桃视频APP下载工业园区华豫大道中段