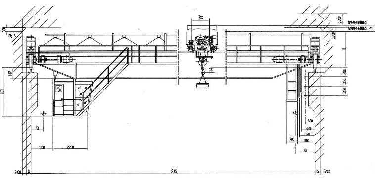
QC型电磁桥式蜜桃视频APP下载机由箱形电缆桥架、大货车运作组织、小轿车、电磁铁吸盘机器设备、电器设备五部份构成,所有结构均在控制房间内控制。当室外应用需带防水防雨机器设备。
QC型电磁桥式蜜桃视频APP下载机含有可装卸搬运的电磁铁吸盘,尤其适用冶金工厂在房间内或室外的固定不动跨距间较繁杂的装卸搬运及运送具备磁力的轻金属产品与原材料。在铸造厂、仓库也常见来运送钢料、铁销等原材料。

QC型电磁桥式蜜桃视频APP下载机采用时,请标明办公环境的*大、*低温和开关电源等。可依据客户规定开展变更设计方案。

相关推荐
联系人:徐经理
手机:13782575673
电话:0373-8611375
邮箱:hnzyaqqz@126.com
官网:www.766cs.com
地址:河南长垣蜜桃视频APP下载工业园区华豫大道中段