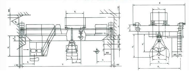
QN型双用桥式蜜桃视频APP下载机就是指可以用蜜桃视频APP下载吊钩做为吊装工具,也可应用抓斗蜜桃视频APP下载机做为吊装工具的双梁桥式蜜桃视频APP下载设备。吊重5~16t;跨距10.5m~50m;工作中等级A6~A8;广泛运用于蜜桃视频APP下载吊装运送、冶金工业、电力工程、港口物流等各个领域,尤其适用铸造行业投料工作的工作状况。



相关推荐
联系人:徐经理
手机:13782575673
电话:0373-8611375
邮箱:hnzyaqqz@126.com
官网:www.766cs.com
地址:河南长垣蜜桃视频APP下载工业园区华豫大道中段