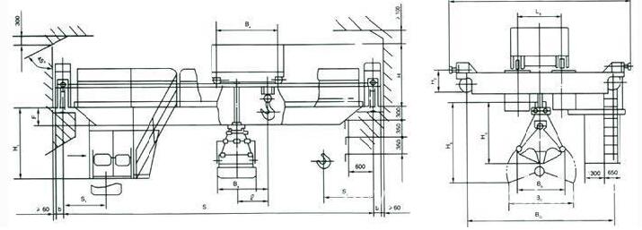
QN型抓斗吊钩双用桥式蜜桃视频APP下载机是在盘料场地应用较多的一种双梁桥式蜜桃视频APP下载机,型号规格为QN,这类蜜桃视频APP下载设备既可应用抓斗蜜桃视频APP下载机爬取各种团状原材料,也可运用蜜桃视频APP下载吊钩吊取别的吊物。我为各位详细介绍下5/5吨、10/10吨、16/16吨抓斗蜜桃视频APP下载机蜜桃视频APP下载吊钩双用桥式蜜桃视频APP下载机的性能参数。


相关推荐
联系人:徐经理
手机:13782575673
电话:0373-8611375
邮箱:hnzyaqqz@126.com
官网:www.766cs.com
地址:河南长垣蜜桃视频APP下载工业园区华豫大道中段