您好,欢迎进入河南省中原蜜桃APP污实业有限公司官方网站!

与时俱进,诚赢客户

蜜桃视频在线观看视频、提梁机、门式蜜桃视频APP下载机生产厂家

服务电话:13782575673

技术资料

您现在所在位置:首页>>技术资料>>5吨L型电动葫芦门式蜜桃视频APP下载机性能参数

5吨L型电动葫芦门式蜜桃视频APP下载机性能参数

本文链接:http://www.766cs.com/jszc/1358.html   发布时间:2022-01-21 10:49:31  点击量:1996

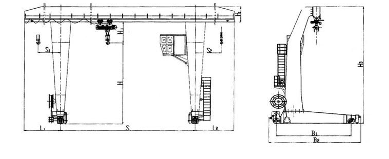
  L型电动葫芦门式蜜桃视频APP下载机就是指以电动葫芦胡芦做为起吊组织的L型单承重梁蜜桃视频APP下载机,与基本MH型蜜桃视频APP下载机不一样的是其支脚样子像英文字母L,故得其名。我为各位详细介绍下5吨L型电动葫芦蜜桃视频APP下载机性能参数。

  L型电葫芦门式蜜桃视频APP下载机结构图

L型电葫芦门式蜜桃视频APP下载机结构图

  L型电葫芦门式蜜桃视频APP下载机性能参数图

L型电葫芦门式蜜桃视频APP下载机结构图

文章聚合页面: L型 蜜桃视频APP下载机参数 蜜桃视频APP下载机结构

技术资料

联系蜜桃APP污

CONTACT US

联系人:徐经理

手机:13782575673

电话:0373-8611375

邮箱:hnzyaqqz@126.com

官网:www.766cs.com

地址:河南长垣蜜桃视频APP下载工业园区华豫大道中段

网站地图